【黃石】嘉泰銀河灣
更新時間:2019-03-26
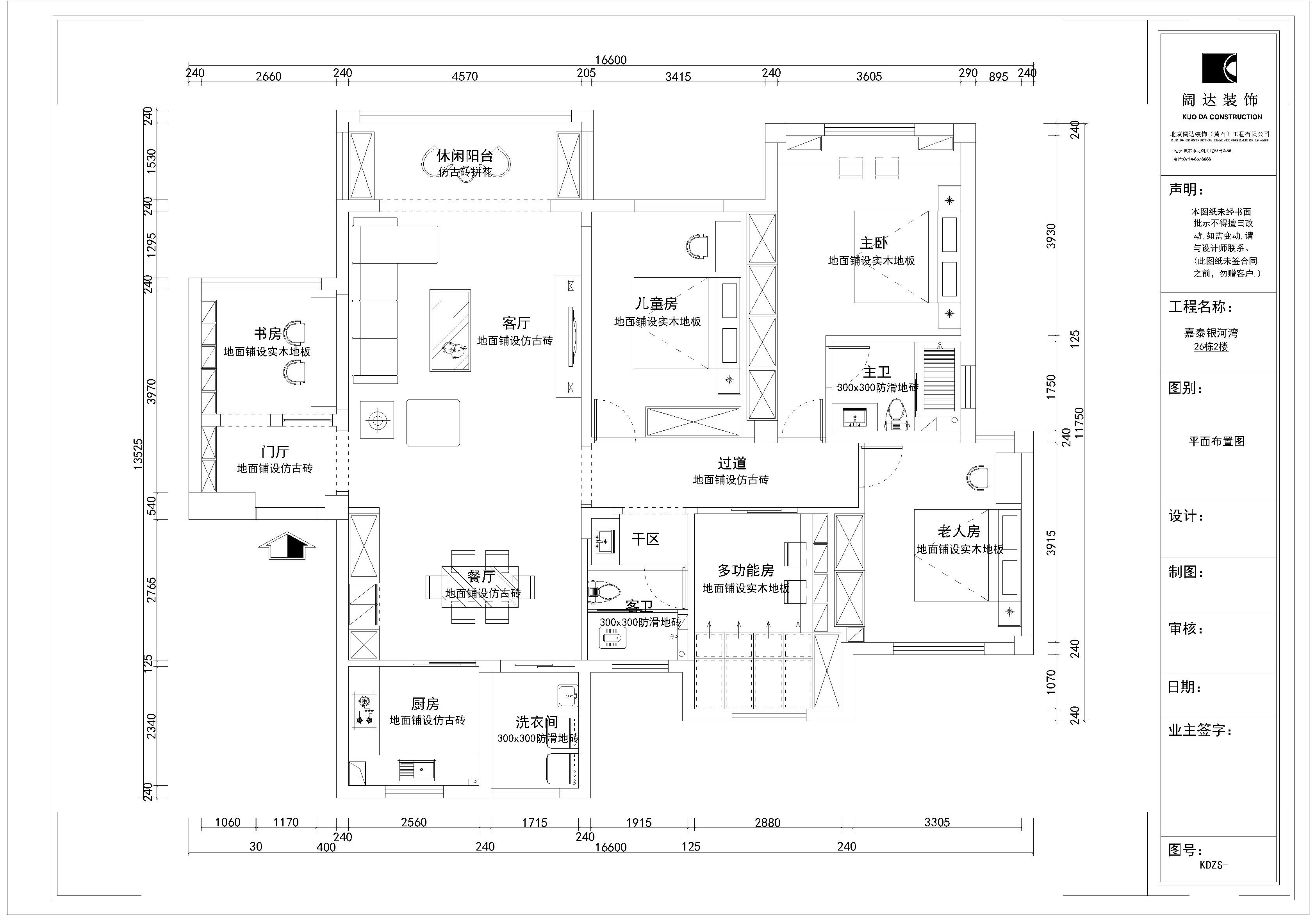
| 設計風格 | 簡美 | 戶型案例 | 四室兩廳一廚兩衛 | 案例面積 | 165 |
|---|---|---|---|---|---|
| 樓盤名稱 | 嘉泰銀河灣 | 所在城市 | 黃石市 | 案例造價 | 50萬 |
| 設計師 | 姜波 | ||||

案例說明:
業主是一對年輕的90后夫妻,幸福過往,攜手相濡以沫,起從這個最初陌生到很熟悉的城市創業,一絲不茍的職業素養,嚴謹的工作態度,家的要求是時尚感和舒適感,多次的碰撞與溝通,和設計師達到更多的契合,于是便開啟了一場愉快的裝修設計之旅。同風格案例:更多>>
同面積案例:












京公網安備 11010802032436號