【北京】玉泉新城
更新時間:2017-06-01
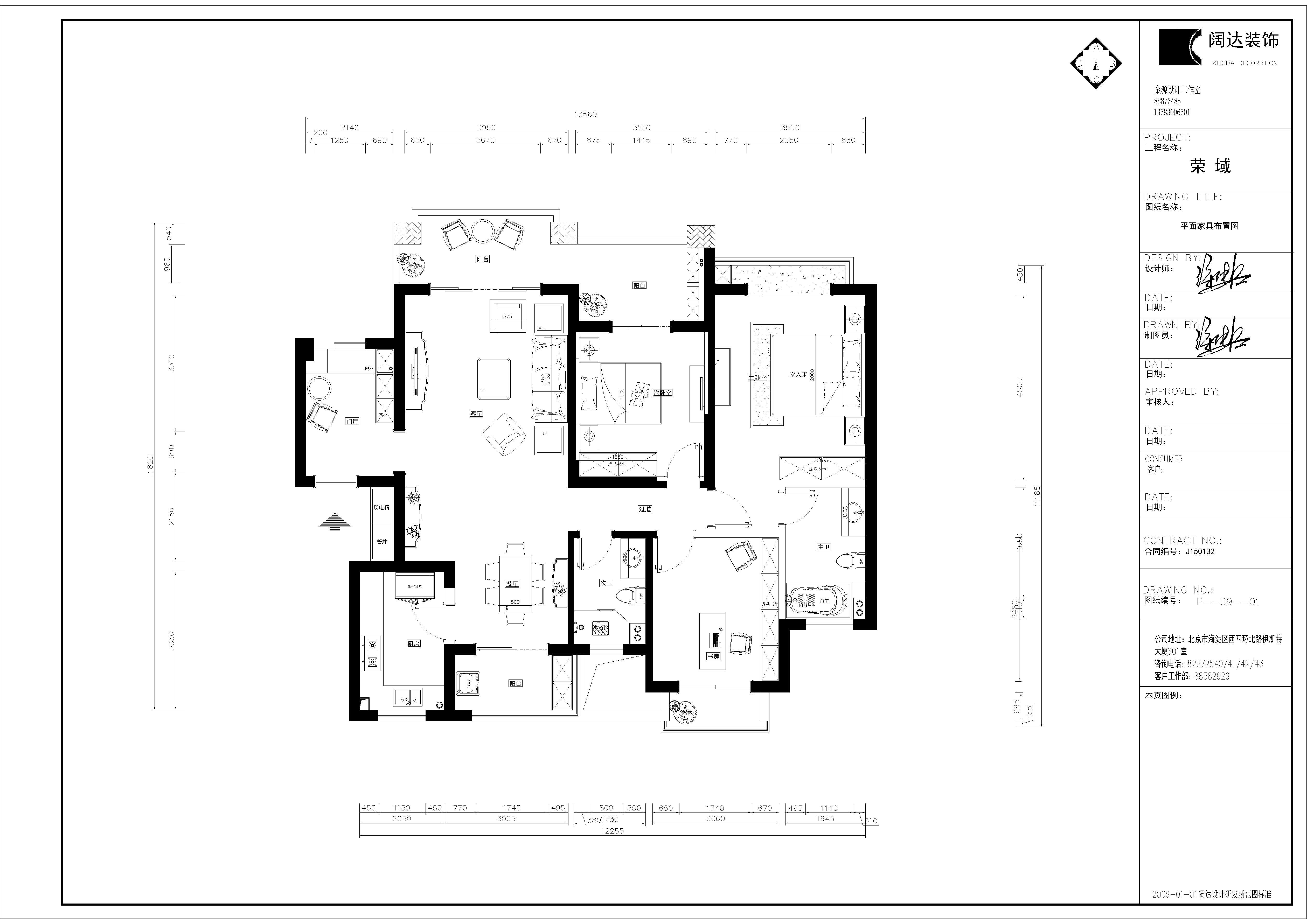
| 設計風格 | 歐式 | 戶型案例 | 三室兩廳 | 案例面積 | 130 |
|---|---|---|---|---|---|
| 樓盤名稱 | 玉泉新城 | 所在城市 | 北京 | 案例造價 | 30萬 |
| 設計師 | 王嬌 | ||||

案例說明:
本案例采用歐式設計風格,通過整體色彩及家具的搭配營造自然、舒適、高雅的生活氛圍,此設計案例也在相當程度上表現出其居住者的品位、愛好和生活價值觀。
同風格案例:更多>>
同面積案例:
| 客戶服務熱線: | 010-84580331 | 加盟咨詢熱線: | 010-82272748 | (工作日:9:00-18:00) |
預約加盟
預約裝修
客戶服務
返回頂部
闊達標準工程,一看就不同!
全國累計已有一百余家加盟公司
免費獲得家裝服務
全國各地業主都在申請!
闊達裝飾竭誠為您服務!
| 設計風格 | 歐式 | 戶型案例 | 三室兩廳 | 案例面積 | 130 |
|---|---|---|---|---|---|
| 樓盤名稱 | 玉泉新城 | 所在城市 | 北京 | 案例造價 | 30萬 |
| 設計師 | 王嬌 | ||||

本案例采用歐式設計風格,通過整體色彩及家具的搭配營造自然、舒適、高雅的生活氛圍,此設計案例也在相當程度上表現出其居住者的品位、愛好和生活價值觀。